Ökologisches Wohnen Modell Natura Mobilheim mit Jute NEU

58.900,00 €
IDIF5768181
16.01.2021
00123
20095 Hamburg
Keine Angabe Anbieter Webseite
Keine Angabe 01525 ... anzeigen

Ökologisches Wohnen Modell Natura Mobilheim mit Jute NEU

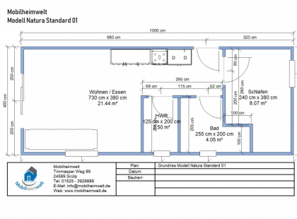
Mobilheim / Modulhaus Natura
10,00m x 4,00m ( 40m² Grundfläche )
210mm Wandstärke mit einem U-Wert von 0,27 W/(m²K)
Unser Mobilheim Natura wird überwiegend aus natürlichen Rohstoffen hergestellt, kurze Wege, Holz aus nachhaltig wachsenden Wäldern, Jute Dämmung mit hervorragenden Eigenschaften im Hitze und Kälteschutz sind nur einige Beispiele für unser trendiges Mobilheim.
Alle Innenwände sind mit Gipskartonplatten verkleidet, der Fußboden besteht aus hochwertigem widerstandsfähigem Echtholzparkett.
Grundausstattung Natura:
? Fassadenverkleidung: Echtholz Fassade in Farbton Natur Massives Lärchenholz als Rhombusprofil
? Außenwandstärke: 210mm kompletter Wandaufbau,Standardwandaufbau mit einem U-Wert von 0,27 W/(m²K)
? Innenwandstärke: 105mm kompletter Wandaufbau
? Isolation: 120mm Thermo-Jute Dämmstoff Schadstofffrei, 0,038 W/(m•K) Wärmeleitfähigkeit, + andere Dämmebenen
? Dachform / Dacheindeckung: Pultdach mit Trapez-Blechdach Deckung
? Fenster und Türen: Holz Natur mit 2-fach Verglasung, Farblos lackiert
? Zentralheizung: Gas-Zentralheizung (Flüssiggas)
? Innenwandverkleidung: Natürliche Gipskartonplatten Tapezierfähig,Design Wandplatten Fliesenoptik im Bad Duschbereich
? Schlafräume: 1 Schrankwand mit Schiebetüren
? Küchenausstattung: Hochwertige Küchenzeile ca. 2,80m Ober- und Unterschränke, Spüle in Edelstahl, 4-flammiges Gas-Kochfeld, Dunstabzug, E-Backofen, Geschirrspüler, Einbau-Kühlschrank mit Gefrierfach
? Badezimmer: Flache Dusche 90/90 cm weiß, Waschbecken mit Unterschrank weiß, Spiegelschrank mit Beleuchtung weiß, Hänge-WC weiß
? Hauswirtschaftsraum: Waschmaschinenanschluss, Ablauf
? Bodenbelag: Hochwertiges Echtholzparkett in allen Räumen
? Elektrik: LED Einbauspots in jeden Raum, 1 TV-Anschluss im Wohnraum,16 Steckdosen, 5 Schalter, Verteilerkasten
? Außenlampe: 4 LED Einbauspots, 1 Außen-Steckdose
Bei unserem Mobilheim Natura haben Sie die Wahl zwischen 2 verschiedenen Wandstärken. Als Standardausführung bieten wir Ihnen den Wandaufbau mit 210mm Stärke mit einem U-Wert von 0,27 W/(m²K)
Optional gibt es den Pro Wandaufbau für die EnEV 2021 in einer Stärke von 250mm mit dem U-Wert von 0,21 W/(m²K)
Vergleichen Sie diese Werte mal mit anderen Herstellen und Sie werden feststellen das die Mobilheimwelt Wandaufbauten mit zu den besten zählen. Nur ein durchdachtes Konzept vom Boden bis zum Dach bewahrt Ihr neues Zuhause vor Schimmelbildung und Pilzbefall.
Wir, als Hersteller von individuellen Mobilheimen & Modulhäusern fertigen Ihr neues Heim in Zimmermannsqualität. Nur so können wir Ihre persönlichen Wünsche nach Raumaufteilung und Größe berücksichtigen.
Eigene Ideen und Vorstellungen ?
Sprechen Sie uns einfach an und lassen Sie Ihren Traum nicht nur einen Traum bleiben...
Weitere Informationen entnehmen Sie bitte unserem Datenblatt welches wir Ihnen gerne auf Nachfrage per E-Mail zusenden, oder schauen Sie auf unserer Homepage unter www.mobilheimwelt.de
Bei weiteren Fragen können Sie mich auch über Whatsapp unter: 01522-6563715 oder über die Nachrichtenfunktion anschreiben.
Ihre Mobilheimwelt Sachau
Weitere Ferienimmobilie Europa Anzeigen
Zahlreiche Straende und eisame Buchten befinden sich nur ein Paar Minuten von der Ferienwohnung entfernt.Sie locken mit feinsten Sandstraenden lauschigen Felsbuchten und Wassersportmoeglichkeiten
60433 muravera villaggio costa rei
15.01.2021
Kleinanzeige muravera villaggio costa rei Immobilien Ferienimmobilie-europa Ferienwohnung B&B Sued-Ost Sardinien zu vermieten
Das Apartment liegt in einer sehr gepflegten Anlage in Puerto del Carmen. Sie wohnen zentral, aber trotzdem ruhig.Bis zum Strand sind es nur 400m. Das Apartment befindet sich in der ersten Etage
46117 Oberhausen
15.01.2021
Kleinanzeige Oberhausen Immobilien Ferienimmobilie-europa Casa Quinta in Puerto del Carmen auf Lanzarote
Exklusive Penthouse-Wohnung auf Marbella, in gepflegter Appartement-Anlage2 Schlafzimmer2 BadezimmerGäste-WCKücheGroßzügiger Wohn-/ EssbereichCa. 130m WohnflächeGroße SonnenterrasseKaufpreis
53773 Hennef Sieg
15.01.2021
Kleinanzeige Hennef Sieg Immobilien Ferienimmobilie-europa Penthouse-Wohnung auf Marbella
81 Betten mit Dusche, WC und Zimmertelefon, Haartrockner, TV, Musik. Aufzug und eine Wendeltreppe aus Marmor mitten im Hotel rundet das Ganze auf. Auch ein Rettungstreppe ist vorhanden
04720 Döbeln
14.01.2021
Kleinanzeige Döbeln Immobilien Ferienimmobilie-europa Alanya Jetzt Reduziert: 3 Stern Famillienhotel
Haus und Kauf Holzstrasse 2 52538 Selfkant Telefon: 02456 5096779 Mobil: 0151 72426936 kontakt at hausundkauf.com www.hausundkauf.de Preis:99.000 Euro Wohnfläche ca.:64 m Zimmeranzahl 3
30457 Torrevieja Costa Blanca
08.01.2021
99.000,00 €
Kleinanzeige Torrevieja Costa Blanca Immobilien Ferienimmobilie-europa Appartements nähe Torrevieja
Haus und Kauf Holzstrasse 2 52538 Selfkant Telefon: 02456 5096779 Mobil: 0151 72426936 kontakt at hausundkauf.com www.hausundkauf.de Auch auf LRm Radio LRm FM 107.6 FM 105.1 FM 105 9
30457 Torrevieja Costa Blanca
08.01.2021
80.000,00 €
Kleinanzeige Torrevieja Costa Blanca Immobilien Ferienimmobilie-europa Bungalows in Torrevieja

Häufig gestellte Fragen

Im Menü Anzeigenverwaltung, auf den Button Nachricht schreiben klicken
Im Menü Anzeigenverwaltung, auf den Button Zur Merkliste hinzufügen klicken
Im Menü Anzeigenverwaltung, auf den Button Anzeige löschen klicken
D
Privater Anbieter
Aktiv seit 16.01.2021
Zeit sparen
Zeit sparen

Anzeigenverteiler Multiposting

Anzeige nur einmal schalten und auf mehreren Anzeigenmärkten gleichzeitig veröffentlichen.

Anzeigenverwaltung Multimanage

Anzeigen mit nur einen Klick auf mehreren Anzeigenportalen gleichzeitig bearbeiten oder löschen.

Besucher Statistiken

Detallierte Statistikdaten über Besucher der Anzeigen.

Weitere Ferienimmobilie Europa Anzeigen
Zahlreiche Straende und eisame Buchten befinden sich nur ein Paar Minuten von der Ferienwohnung entfernt.Sie locken mit feinsten Sandstraenden lauschigen Felsbuchten und Wassersportmoeglichkeiten
60433 muravera villaggio costa rei
15.01.2021
Kleinanzeige muravera villaggio costa rei Immobilien Ferienimmobilie-europa Ferienwohnung B&B Sued-Ost Sardinien zu vermieten
Das Apartment liegt in einer sehr gepflegten Anlage in Puerto del Carmen. Sie wohnen zentral, aber trotzdem ruhig.Bis zum Strand sind es nur 400m. Das Apartment befindet sich in der ersten Etage
46117 Oberhausen
15.01.2021
Kleinanzeige Oberhausen Immobilien Ferienimmobilie-europa Casa Quinta in Puerto del Carmen auf Lanzarote
Exklusive Penthouse-Wohnung auf Marbella, in gepflegter Appartement-Anlage2 Schlafzimmer2 BadezimmerGäste-WCKücheGroßzügiger Wohn-/ EssbereichCa. 130m WohnflächeGroße SonnenterrasseKaufpreis
53773 Hennef Sieg
15.01.2021
Kleinanzeige Hennef Sieg Immobilien Ferienimmobilie-europa Penthouse-Wohnung auf Marbella
81 Betten mit Dusche, WC und Zimmertelefon, Haartrockner, TV, Musik. Aufzug und eine Wendeltreppe aus Marmor mitten im Hotel rundet das Ganze auf. Auch ein Rettungstreppe ist vorhanden
04720 Döbeln
14.01.2021
Kleinanzeige Döbeln Immobilien Ferienimmobilie-europa Alanya Jetzt Reduziert: 3 Stern Famillienhotel
Haus und Kauf Holzstrasse 2 52538 Selfkant Telefon: 02456 5096779 Mobil: 0151 72426936 kontakt at hausundkauf.com www.hausundkauf.de Preis:99.000 Euro Wohnfläche ca.:64 m Zimmeranzahl 3
30457 Torrevieja Costa Blanca
08.01.2021
99.000,00 €
Kleinanzeige Torrevieja Costa Blanca Immobilien Ferienimmobilie-europa Appartements nähe Torrevieja
Haus und Kauf Holzstrasse 2 52538 Selfkant Telefon: 02456 5096779 Mobil: 0151 72426936 kontakt at hausundkauf.com www.hausundkauf.de Auch auf LRm Radio LRm FM 107.6 FM 105.1 FM 105 9
30457 Torrevieja Costa Blanca
08.01.2021
80.000,00 €
Kleinanzeige Torrevieja Costa Blanca Immobilien Ferienimmobilie-europa Bungalows in Torrevieja

Häufig gestellte Fragen

Im Menü Anzeigenverwaltung, auf den Button Nachricht schreiben klicken
Im Menü Anzeigenverwaltung, auf den Button Zur Merkliste hinzufügen klicken
Im Menü Anzeigenverwaltung, auf den Button Anzeige löschen klicken
Sucheinstellungen ändern